Makléř: Mgr. Leona Šnajdarová
Telefon: 538 711 ...
E-mail: renc@re ...
Zobrazit celý kontaktTelefon: 538 711 788, 603 846 609
E-mail: renc@renc.cz
Nemovitost nabízí
RENČ - realitní kancelář
Kounicova 67, 602 00 Brno
Zobrazit kontakt na RK538 711 788
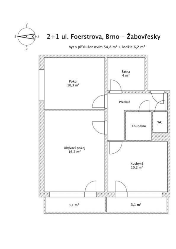
K pronájmu nabízíme byt o dispozici 2+1, umístěný v 1. podlaží (zvýšeném přízemí) bytového domu v Brně - Žabovřeskách, na ulici Foerstrova. Celková podlahová plocha bytu činí 54,8 m2 (pokoje 16,2 a 10,3 m2, kuchyně 10,2 m2, šatna 4 m2). Byt je slunný, má dvě lodžie s otevíravým zasklením orientované západním směrem s hezkým výhledem do zeleně. K bytu náleží sklepní box. Byt je vybaven kuchyňskou linkou se sporákem a digestoří. Byt není vybaven nábytkem. Jádro bytu je po rekonstrukci zděné, v koupelně je sprchový kout, umyvadlo a je zde prostor pro umístění pračky. Toaleta je umístěna zvlášť. V oknech jsou instalovány žaluzie a v místnostech svítidla. Bytový dům prošel celkovou revitalizací, byl zateplen obvodový plášť, jsou instalována nová plastová okna se žaluziemi, nové stupačky, byly opraveny vstupy a chodby. Dům je situován v klidném místě s dobrou dopravní dostupností do centra Brna. V nejbližším okolí bytu je veškerá občanská vybavenost. Kauce je ve výši jednoho měsíčního nájemného. Byt bude volný k nastěhování od 10.1.2026, prohlídky bytu jsou možné ihned. <a href="https://www.eurobydleni.cz/byty/2_kk/brno/obec-zabrdovice/pronajem/"><strong>Pronájem bytu 2+kk Brno-město, Zábrdovice</strong></a>
Pronájem bytu 2+1 76 m2, Brno
Hledáte k pronájmu vzdušný a prostorný byt? Pak mám pro Vás nabídku bytu o dispozici 2+1 a ploše 76 m2, který se nachází ve 2. nadzemním podlaží…
Pronájem, Byt 2+1, Brno
Ve výhradním zastoupení majitele nabízíme k dlouhodobému pronájmu byt 2+1 o velikosti CP 52 m2. Bytová jednotka se nachází ve 2. nadzemním podlaží…
Pronájem bytu 2+1 Brno-město, Žabovřesky na Eurobydleni.cz