Makléř: Miloslava Kačerová
Telefon: 222 703 ...
E-mail: podpora ...
Zobrazit celý kontaktTelefon: 222 703 030
E-mail: podpora@idealninajemce.cz
Nemovitost nabízí
Ideální nájemce
Lazaretní 925/9, 615 00 Brno
Zobrazit kontakt na RK222 703 030
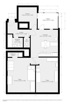
K dlouhodobému podnájmu nabízíme krásný a moderní byt o dispozici 2+1, které je možné využít jako 3+kk v oblíbené lokalitě Staré Brno. Byt o velkorysé výměře 79 m2 se nachází ve 5 nadzemním podlaží bez výtahu. K bytu patří i zastřešená lodžie, kterou je možné využít jako zimní zahradu. Byt se nabízí částečně vybavený. Kuchyně disponuje lednicí, varnou deskou, troubou, myčkou a digestoří. V kuchyni se nachází jídelní stůl a židle. Součástí místností je i TV skříňka a prostor pro sedací soupravu. Dva prostorné pokoje jsou neprůchozí a nachází se v nich jednolůžko, psací stůl a gauč.. Koupelna je zařízena vanou, umyvadlem, a pračkou. Toaleta je samostatná. Velkou výhodou bytu je i oddělená šatna s dostatkem úložného prostoru. Byt je volný k nastěhování ihned. Lokalita nabízí veškerou občanskou vybavenost jako obchody, kavárny, školy, školky, restaurace, lékárny, parky a hlavně výbornou dostupnost MHD do centra města Brna (do 7 minut jízdy MHD). Nejbližší tramvajová zastávka je vzdálena cca 5 minut chůze od domu. Byt pronajímá Ideální nájemce - služba, se kterou budete bydlet bezstarostně a za férových podmínek. Když se něco přihodí, k dispozici jsou správci, kteří s vámi vše vyřeší. Pomůžeme s veškerou administrativou, s nastavením plateb a zajistíme vám speciální pojištění. Pojďte bydlet s námi!
Pronájem hezkého bytu 2+1 s 2 lodžiemi v Žabovřeskách
Nabízíme pronájem krásného bytu 2+1 s 2 lodžiemi na ulici Záhřebská. Byt se nachází ve 3. patře panelového domu bez výtahu. Celková plocha bytu je…
Pronájem bytu 2+1, Vysoká, Štýřice, Kč/měs, 54 m2
Krásný, zrekonstruovaný byt 2+1 na ulici Vysoká v Brně. Byt prošel celkovou rekonstrukcí. Byt sestává z prostorného obývacího pokoje se sedací…