Aktuálně můžete v lokalitě Brno vybírat z nabídky 458 bytů.
Přehled nemovitostí: pronájem byty > 2+kk Zpět na přehled nabídek

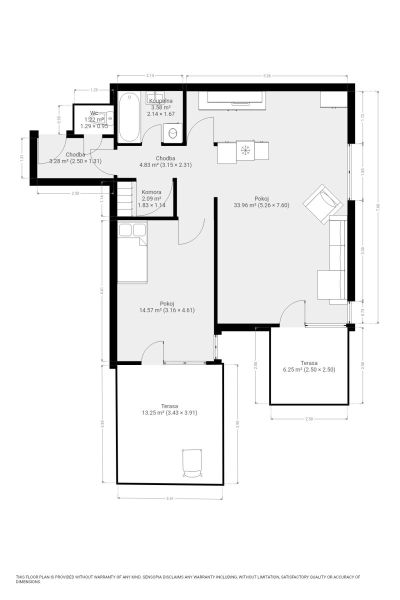
Pronájem bytu 2+kk, Majdalenky, Lesná, 19.900 Kč/měs, 63 m2, Brno

63 m2

63 m2

osobní

G - Mimořádně nehospodárná

N7255

11.03.2026

Cena: 19900 CZK / objekt / měsíc
Poznámka k ceně: vratná jistota, 5.967 Kč náklady na bydlení, poplatek za podnájem 1

Poslat dotaz k nabídce
Zásady používání osobních údajů

Prodejce

Makléř: Miloslava Kačerová

Telefon: 222 703 ...

E-mail: podpora ...

Zobrazit celý kontakt

Nemovitost nabízí

Ideální nájemce

Lazaretní 925/9, 615 00 Brno

idealninajemce.cz

Zobrazit kontakt na RK

Zobrazit všechny nabídky RK

K dlouhodobému podnájmu nabízíme krásný a prostorný byt o dispozici 2+kk v klidné a žádané lokalitě Brno - Lesná. Byt o celkové výměře 63 m2 se nachází v prvním patře cihlového domu s výtahem. K bytu náleží prostorná terasa i balkon. Byt se nabízí částečně vybavený. Kuchyňský kout disponuje linkou se spotřebiči jako lednice, varná deska, digestoř, mikrovlnná trouba. Z obývacího pokoje vstup na balkon. Ložnice vybavena postelí a součástí ložnice je i vstup na terasu. Prostorná koupelna s vanou, umyvadlem, pračkou a topným žebříkem je od toalety oddělena. Velkou výhodou je komora přímo v bytě. V okolí domů se nachází veškerá občanská vybavenost - supermarket Billa, restaurace, dětské hřiště, zeleň, sportovní a společenské vyžití. Skvělá dopravní dostupnost - zastávka MHD Haškova kousek od domu. Byt je volný k nastěhování ihned. Uvedena energetická kategorie G, jelikož nemáme k dispozici PENB. Byt pronajímá Ideální nájemce - služba, se kterou budete bydlet bezstarostně a za férových podmínek. Když se něco přihodí, k dispozici jsou správci, kteří s vámi vše vyřeší. Pomůžeme s veškerou administrativou, s nastavením plateb a zajistíme vám speciální pojištění. Pojďte bydlet s námi!



Nahoru