Makléř: Miloslava Kačerová
Telefon: 222 703 ...
E-mail: podpora ...
Zobrazit celý kontaktTelefon: 222 703 030
E-mail: podpora@idealninajemce.cz
Nemovitost nabízí
Ideální nájemce
Lazaretní 925/9, 615 00 Brno
Zobrazit kontakt na RK222 703 030
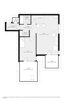
K dlouhodobému podnájmu nabízíme krásný a prostorný byt o dispozici 2+kk v klidné a žádané lokalitě Brno - Lesná. Byt o celkové výměře 63 m2 se nachází v prvním patře cihlového domu s výtahem. K bytu náleží prostorná terasa i balkon. Byt se nabízí částečně vybavený. Kuchyňský kout disponuje linkou se spotřebiči jako lednice, varná deska, digestoř, mikrovlnná trouba. Z obývacího pokoje vstup na balkon. Ložnice vybavena postelí a součástí ložnice je i vstup na terasu. Prostorná koupelna s vanou, umyvadlem, pračkou a topným žebříkem je od toalety oddělena. Velkou výhodou je komora přímo v bytě. V okolí domů se nachází veškerá občanská vybavenost - supermarket Billa, restaurace, dětské hřiště, zeleň, sportovní a společenské vyžití. Skvělá dopravní dostupnost - zastávka MHD Haškova kousek od domu. Byt je volný k nastěhování ihned. Uvedena energetická kategorie G, jelikož nemáme k dispozici PENB. Byt pronajímá Ideální nájemce - služba, se kterou budete bydlet bezstarostně a za férových podmínek. Když se něco přihodí, k dispozici jsou správci, kteří s vámi vše vyřeší. Pomůžeme s veškerou administrativou, s nastavením plateb a zajistíme vám speciální pojištění. Pojďte bydlet s námi!
Pronájem bytu 2+kk s balkonem, Brno - ulice Krymská
Nabízíme k pronájmu moderní byt o dispozici 2+kk v žádané lokalitě Brno - Bohunice, ulice Krymská. Celková plocha bytu činí 40,5 m2, k bytu náleží…
Brno-město, pronájem bytu 2+kk, 46 m - byt
Nabízíme krásný, nový a moderní byt 2+kk o velikosti 46 m v prestižní budově Thonet Palace, přímo na Jakubském náměstí. Budova dýchá luxusem, který…