Makléř: Lenka Mors
Telefon: 730 680 ...
E-mail: mors@ho ...
Zobrazit celý kontaktTelefon: 730 680 604
E-mail: mors@home4people.cz
Nemovitost nabízí
HOME 4 PEOPLE, a.s.
Nádražní 47/90, 150 00 Praha 5
Zobrazit kontakt na RK734 177 127
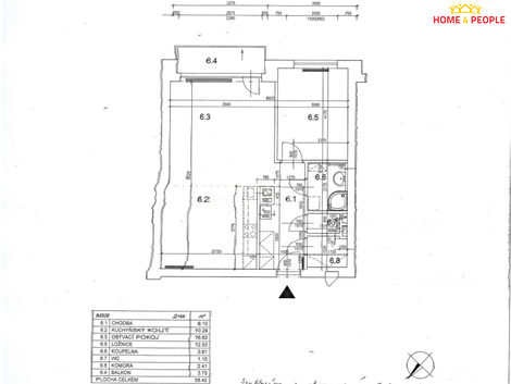
Nabízíme k prodeji moderní, nezařízený byt 2+kk s balkonem v žádané městské části Brno - Slatina, ulice Ponětovická. Byt se nachází v 1. patře cihlového domu a jeho celková plocha činí 58m2. Dispozice bytu zahrnuje světlý obývací pokoj s kuchyňským koutem, samostatnou ložnici, prostornou koupelnu a předsíň s vestavěnou skříní. Kuchyňská linka je vybavena vestavěnými spotřebiči - elektrická varná deska, trouba, lednice s mrazákem a myčka na nádobí. Vytápění a ohřev teplé vody zajišťuje vlastní plynový kotel. Byt je situován v klidné lokalitě s kompletní občanskou vybaveností v docházkové vzdálenosti. Velkou výhodou je výborná dostupnost MHD do centra města i blízkost CT parku v Brněnské průmyslové zóně. Měsíční poplatky spojené s užíváním bytu jsou 4500,- Kč. Nemovitost je ideální jako investice na pronájem, tak i k vlastnímu bydlení. Cena je 7 550 000 + provize RK. Uvolnění nemovitosti je možné od 1.5. 2026 Ev. číslo: 31731. Energetický štítek: B (2147 kWh/m2/rok).
Prodej bytu 2+1 58 m2, Brno - Štýřice
Nabízíme k prodeji prostorný byt 2+1 o velikosti 58 m2, který se nachází v 1. nadzemním podlaží cihlového domu na vyhledávané Renneské třídě v Brně.…
Prodej bytu 2+kk o celkové výměře 54 m2
První etapa nového brněnského rezidenčního projektu Vista Lískovec je právě v prodeji! Nabízíme byt s oblíbenou dispozicí 2+kk o celkové výměře 54…