Aktuálně můžete v lokalitě Brno vybírat z nabídky 481 bytů.
Přehled nemovitostí: prodej byty > 3+1 Zpět na přehled nabídek

Prodej 3+1 v Brno - Řečkovice

neuvedeno

neuvedeno

osobní

G - Mimořádně nehospodárná

34

01.04.2026

Cena: 9400000 CZK / objekt
Poznámka k ceně: včetně provize RK 1

Poslat dotaz k nabídce
Zásady používání osobních údajů

Prodejce

Makléř: Mgr. Hrbek Jan

Telefon: 605 889 ...

E-mail: jan.hrb ...

Zobrazit celý kontakt

Nemovitost nabízí

Hrbek Reality, s.r.o.

Syrovice 415, Syrovice

Zobrazit kontakt na RK

Zobrazit všechny nabídky RK

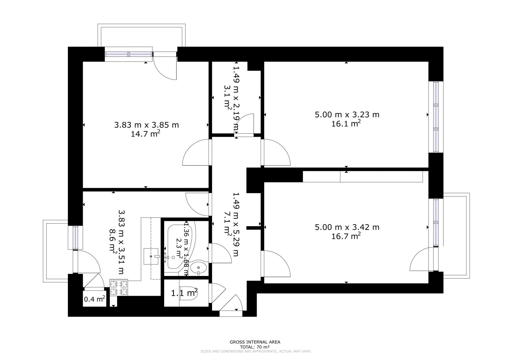
. Tento prostorný byt, s dispozicí 3+1 a čistou podlahovou plochou 70m2 (bez balkonů a sklepa), se nachází v klidné části obce Brno - Řečkovice. V bytě jsou tři samostatné pokoje s parkety, dva z nich mají vlastní balkon. V kuchyni a chodbě je na zemi položené lino. Samostatné WC, jádro je zděné. Byt je nově vymalován. Ve všech pokojích jsou plastová okna s žaluziemi. Za zmínku stojí také samostatná šatna, která poskytuje dostatek úložného prostoru. K dispozici je i velký zděný sklep. Byt je v dobrém stavu a je ihned k nastěhování. . Výhodou je také výborné dopravní spojení s centrem města. Tento byt nabízí nejen dostatek prostoru, ale také pohodlné a klidné bydlení v oblíbené části Brna. Neváhejte a kontaktujte nás pro více informací nebo prohlídku. Tato nemovitost je skvělou volbou pro ty, kteří hledají ideální bydlení v Brně - Řečkovicích. Majitelé si vyhrazují právo vyhodnotit nabídky zájemců a vybrat dle svých požadavků. Výhodné financování pomůžeme zajistit. <a href="https://www.eurobydleni.cz/domy/rodinny-dum/praha-zapad/obec-jiloviste/prodej/"><strong>Prodej rodinného domu Jíloviště</strong></a>




Prodej bytu 3+1 Brno-město, Řečkovice na Eurobydleni.cz


Nahoru