Makléř: Friedbergová Iveta
Telefon: 734 799 ...
E-mail: iveta.f ...
Zobrazit celý kontaktTelefon: 734 799 447
E-mail: iveta.friedbergova@century21.cz
Nemovitost nabízí
CENTURY 21 4fin Reality
Na Hřebenech II 1718/8, 140 00 Praha 4
Zobrazit kontakt na RK
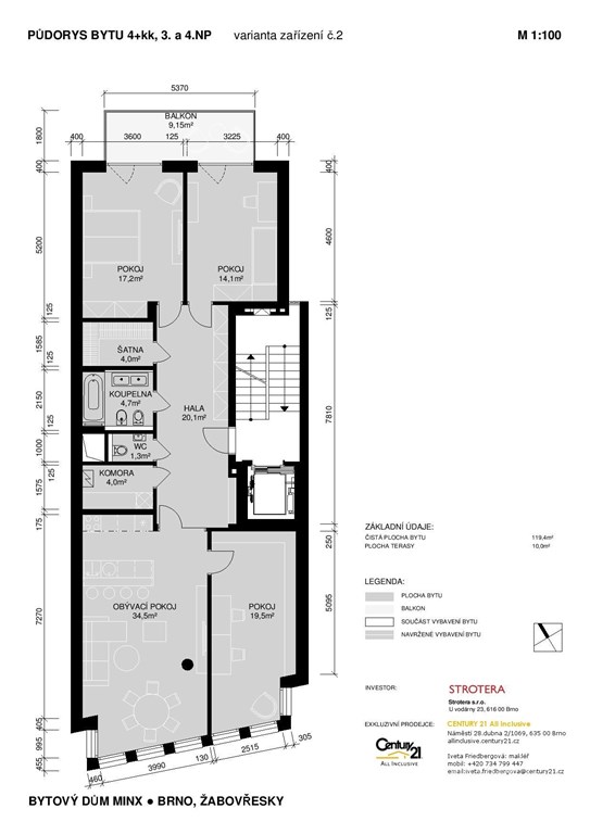
Prostor, světlo, komfort, krásný výhled z celého bytu, moderní architektura? Vše v jednom v Žabovřeskách. Jedinečná příležitost pronájmu bytu v Brně v Žabovřeskách o dispozici 4+KK a celkové ploše 129 m2. Prostorný, světlý byt o vnitřní podlahové ploše 120m2 s balkonem 9 m2 je orientován do klidného vnitrobloku do zahrad, nabízí uživatelům výhled na vzrostlé stromy. Parkování přímo v domě v zakladačích. Společným jmenovatelem celého bytového domu je mimořádné soukromí a velkorysý obytný prostor (na každém patře je pouze jeden byt), komfort (bezbariérový přístup výtahem až do bytu, parkování v domě) a světlo (dřevěná francouzská okna se skleněným zábradlím, speciální akustické ventilační mřížky do ulice). Špičkové standardy vybavení interiéru domu a bytu travertinový obklad vstupní haly, dřevěné dubové podlahy, dýhované dveře, s nerezovými klikami, koupelna s dvojumyvadlem a bidetem, podlahové topení s vlastním kotlem. Lokalita bytového domu je v oblíbené a vyhledávané čtvrti Brna "staré Žabovřesky", nedaleko od centra města. V těsné blízkosti se nachází například Wilsonův les a sportovní areál Rosnička, ale také jedna z nejlepších základních škol města - ZŠ Sirotkova a elitní Gymnázium Matyáše Lercha. Autor projektu, prof. Ing. arch. Petr Pelčák, klade nebývalý důraz na kvalitní provedení a architekturu nejen domu jako celku, ale i řešením detailů interiérů. Cena podnájmu je 35.000, za byt, 2.000, za parkování. K ceně nájemného budou připočteny zálohy na služby ve výši 6.000, korun. Pro sjednání prohlídky Vašeho nového bydlení bez kompromisů kontaktujte makléřku. Volné ihned.
Pronájem bytu 4+kk 111 m2, Brno - Černá Pole
Nabízíme k pronájmu moderní, nadstandardně prostorný byt 4+kk o velikosti 111 m2, který se nachází v reprezentativním bytovém domě na ulici Milady…
Pronájem bytu 4+kk 125 m2, Brno - Sadová
Pronájem prostorného bytu s terasou a garážovým stáním - Brno, Sadová, ul. Jarmily Kurandové Nabízíme k pronájmu nádherný a nadstandardně prostorný…