Makléř: Marek Jaroš
Telefon: 725 974 ...
E-mail: jaros@g ...
Zobrazit celý kontaktTelefon: 725 974 842
E-mail: jaros@good-move.cz
Nemovitost nabízí
Good move
Dr.Absolonova 132, 763 16 Fryšták
Zobrazit kontakt na RK
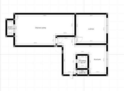
Nabízíme k prodeji slunný byt o dispozici 2+1 s prakticky odděleným prostorem a celkové ploše 55 m2, situovaný přímo na náměstí SNP v jedné z nejvyhledávanějších brněnských čtvrtí - Černá Pole. Byt je v původním, udržovaném stavu, což vám dává dvě jasné možnosti. Můžete ho začít okamžitě využívat - stačí dovybavit nábytkem a získáte plnohodnotné, funkční bydlení ideální jako startovací byt nebo zázemí pro studenty. Zároveň ale nabízí velmi zajímavý potenciál do budoucna - rekonstrukcí si prostor přizpůsobíte přesně podle sebe nebo ho optimalizujete pro maximální výnos z pronájmu. Dispozice bytu nabízí víc, než se na první pohled zdá. Vedle klasického řešení 2+1 zde najdete také prakticky oddělený prostor, který dnes funguje jako otevřená zóna, ale snadno poslouží jako pracovna, spací kout nebo šatna. Díky svému uspořádání jej lze navíc jednoduchým řešením (např. příčkou a dveřmi) přeměnit na samostatnou menší místnost. Právě tato variabilita výrazně zvyšuje atraktivitu jak pro vlastní bydlení, tak pro pronájem více osobám. Balkon orientovaný do zeleně přináší příjemný klid a prostor pro každodenní relax, zatímco sklepní kóje řeší praktickou stránku úložného prostoru. Velkou výhodou je samotný dům, který prošel kompletní revitalizací - zateplení, fasáda, stupačky, výtahy, elektřina i střecha. Pro nového majitele to znamená minimum starostí a dlouhodobě stabilní hodnotu nemovitosti. Energetická třída C navíc drží provozní náklady v rozumné hladině. Černá Pole patří dlouhodobě mezi lokality s vysokou poptávkou po bydlení. Výborná dostupnost do centra, kompletní občanská vybavenost v docházkové vzdálenosti a blízkost zeleně dělají z této adresy ideální volbu jak pro vlastní bydlení, tak pro investici.
Brno - Černá Pole, byt OV 2+1, cca 55 m, balkón - byt
Hledáte byt v jedné z nejžádanějších lokalit Brna? Exkluzivně vám nabízíme ke koupi světlý byt v osobním vlastnictví o dispozici 2+1 s balkonem,…
Prodej bytu 2+1, 57 m, Brno - Obřany, ul. Fryčajova
Exkluzivně nabízíme ke koupi byt v osobním vlastnictví 2+1 v Brno Obřany, ul. Fryčajova. Hledáte byt, který je připravený k bydlení bez nutnosti…