Aktuálně můžete v lokalitě Brno vybírat z nabídky 524 bytů.
Přehled nemovitostí: prodej byty > 3+1 Zpět na přehled nabídek

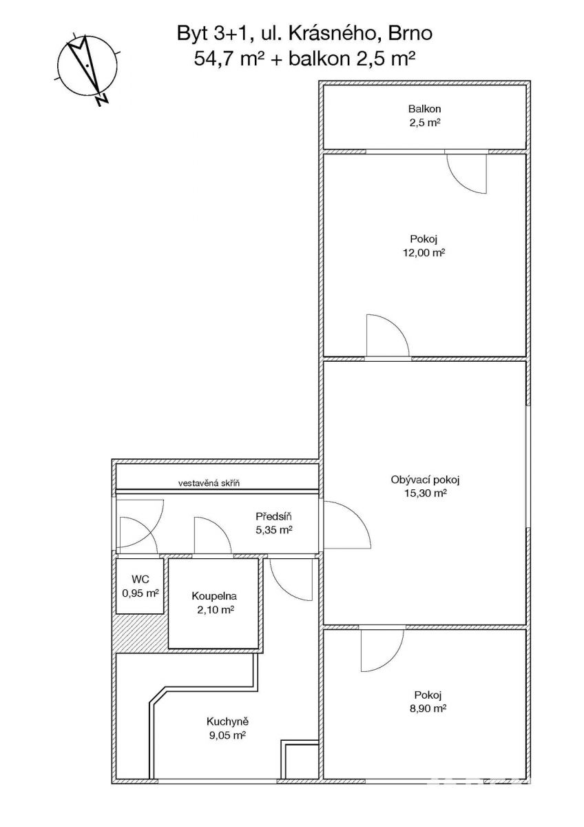
Prodej bytu 3+1 s balkonem v bytovém domě na ulici Krásného v Brně - Juliánově v blízkosti lesoparku, Brno

neuvedeno

neuvedeno

osobní

D - Méně úsporná

01532

02.05.2026

Cena: 7950000 CZK / objekt
Poznámka k ceně: včetně provize, cena k jednání 1

Poslat dotaz k nabídce
Zásady používání osobních údajů

Prodejce

Makléř: Mgr. Leona Šnajdarová

Telefon: 538 711 ...

E-mail: renc@re ...

Zobrazit celý kontakt

Nemovitost nabízí

RENČ - realitní kancelář

Kounicova 67, 602 00 Brno

www.renc.cz

Zobrazit kontakt na RK

Zobrazit všechny nabídky RK

Nabízíme ke koupi byt v osobním vlastnictví o dispozici 3+1, který je umístěný ve 4. patře panelového bytového domu s výtahem na ul. Krásného v Brně - Juliánově v blízkosti lesoparku Bílá hora. Celková podlahová plocha bytu včetně příslušenství činí 54,7 m2 + balkon 2,5 m2. K bytu náleží sklepní box a dále je možné využívat společnou kolárnu a sušárnu v přízemí domu. Z předsíně bytu je možné vstoupit do kuchyně (8,7 m2), obývacího pokoje (15,3 m2), do koupelny a na toaletu. Z obývacího pokoje jsou přístupné dvě ložnice (12 m2 a 8,9 m2). K větší z nich přiléhá balkon s hezkým výhledem, orientovaný jižním směrem. Byt je díky své poloze velmi dobře osvětlen. Byt je po kompletní rekonstrukci, byla provedena nová elektroinstalace, vyměněna okna za plastová, instalovány bezpečnostní vstupní dveře a vnitřní dveře. Byt je vybaven kuchyňskou linkou s plynovou varnou deskou, elektrickou troubou, myčkou, digestoří a mikrovlnnou troubou, vestavěnou šatní skříní v předsíni a horizontálními žaluziemi v oknech. Koupelna je vybavena vanou, umyvadlem se skříňkou a zrcadlem. Toaleta je umístěna samostatně. Měsíční zálohové platby za služby spojené s užíváním bytu (voda, teplo, fond oprav, společné výdaje domu) činí pro dvě osoby 6.118,- Kč za měsíc. Dále je hrazena spotřeba elektřiny a plynu cca 1.000,-Kč za měsíc. V bytě jsou instalovány veškeré měřiče energií. Dům, ve kterém se byt nachází, prošel celkovou opravou a revitalizací. Společenství vlastníků jednotek nesplácí žádný úvěr. Dům je situován v klidné části Juliánova, v blízkosti domu je zastávka MHD. V nejbližším okolí je veškerá občanská vybavenost (nákupní středisko, koupaliště, restaurace, dětské hřiště, sportoviště, základní i mateřská škola). Nedaleko je lesopark Bílá hora, který lze využívat k procházkách a relaxaci. Nemovitost je vhodná k bydlení i jako investice za účelem pronájmu. Byt je možné použít jako zástavu v případě financování koupě prostřednictvím úvěru. Pokud Vás tento byt zaujal, domluvte si se mnou osobní prohlídku. Zajištění hypotečního servisu na míru a další služby dle individuálních potřeb klienta jsou samozřejmostí. <a href="https://www.eurobydleni.cz/byty/1_1/praha-4/obec-branik/pronajem/"><strong>Pronájem bytu 1+1 Praha 4, Braník</strong></a>




Prodej bytu 3+1 Brno-město, Židenice na Eurobydleni.cz


Nahoru