Makléř: MERIDIEM Allrisk
Telefon: 773 005 ...
E-mail: info@al ...
Zobrazit celý kontaktTelefon: 773 005 005
E-mail: info@allriskmeridiem.cz
Nemovitost nabízí
Allrisk reality & finance s.r.o.
Komárovská 20a, 61700 Brno
Zobrazit kontakt na RK545 110 345
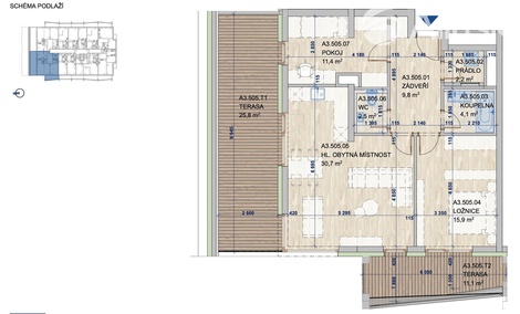
Bydlete v brněnském diamantu. Polyfunkční objekt Allrisk MERIDIEM nabízí moderní byty rozmanitých dispozic a metráží v lokalitě nově vznikající jižní čtvrti Trnitá vzdálené jen 5 minut od centra Brna. V Allrisk MERIDIEM se potkává městský život s prostorem pro relax, sport a každodenní pohodlí. Žijte na adrese, která spojuje centrum města i budoucnost výjimečné lokality. Služby v domě: * posilovna * kavárna Kafec * vinotéka * jógové studio * kosmetické služby * veterinární klinika * pobočka Allrisk reality & finance V rámci projektu nabízíme byt 3+kk o celkové ploše 76,6 m2, umístěný v 5. nadzemním podlaží. Byt tvoří zádveří s úložným zázemím, samostatná místnost pro pračku a sušičku, koupelna a samostatné WC. Dominantou bytu je hlavní obytná místnost s kuchyňským koutem o velikosti, která je přirozeně prosvětlená díky velkým proskleným plochám. Velkým benefitem bytu jsou dvě prostorné terasy přístupné z obytné místnosti, pokoje i ložnice. Možnost dokoupení 2 garážových stání a 2 sklepních kójí za výhodnou cenu. Zaujala vás nabídka? Vyplňte kontaktní formulář nebo navštivte webové stránky projektu. Rádi vám celý projekt představíme v prezentační místnosti přímo u stavby. Financování k rezervaci stačí pouze 3 % z kupní ceny, zbývajících 97 % se hradí až po podpisu kupní smlouvy. S financováním i případným pronájmem Vám ráda pomůže skupina Allrisk, která nabízí širokou paletu produktů a služeb. Pokud jste si nevybrali z uveřejněné nabídky, zadejte nám prosím Vaši poptávku a my se pokusíme najít odpovídající nemovitost.
Prodej pěkného bytu 3+kk, Faměrovo nám, Brno, 61 m2
Nabízíme k prodeji pěkný byt o dispozici 3+kk, situovaný v klidné části Brna - Černovic. Celková velikost bytu je 60,7m2. Dispozice zahrnuje vstupní…
Mezonetový byt s krásným výhledem na Brno, 3+kk s terasou, ul. Tržní 6, Brno
Nabízíme k prodeji moderně zrekonstruovaný byt s klimatizací o dispozici 3+kk na ulici Tržní 6 v Brně Černovicích. Tento byt se nachází v 6. patře…