Makléř: Zavadilová Tereza
Telefon: 538 728 ...
E-mail: bonusbr ...
Zobrazit celý kontaktTelefon: 538 728 645
E-mail: bonusbrno@century21.cz
Nemovitost nabízí
CENTURY 21 Bonus Brno
Křenová 479/71, Brno
www.century21.cz/kancelar-bonus-brno
Zobrazit kontakt na RK737 199 849
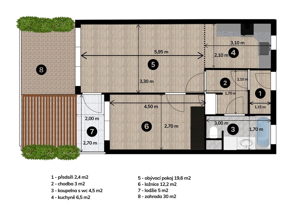
Nabízíme k prodeji útulný byt 2+KK se soukromou zahradou, který se nachází na ulici Sokolnická v Brně v Tuřanech. Bytová jednotka o užitné ploše 48,2 m2 je umístěn v 1. nadzemním podlaží zděného domu s pavlačí. Díky orientaci na jihozápad a do klidného vnitrobloku nabízí příjemné a ničím nerušené bydlení. Dispozice bytu je praktická a promyšlená. Tvoří ji vstupní předsíň (2,4 m2) s navazující chodbou (3 m2), koupelna s toaletou (4,5 m2), prostorný obývací pokoj (19,6 m2) s kuchyňským koutem (6,5 m2) a ložnice (12,2 m2) vybavená skříní. Velkou výhodou jsou okna v kuchyni i koupelně, která zajišťují přirozené denní světlo a možnost přirozeného větrání. Součástí bytu je také lodžie o velikosti 5 m2, která přímo navazuje na soukromou zahradu o ploše 30 m2 s pergolou a přívodem vody, což je ideální pro péči o zeleň, letní posezení či další venkovní aktivity. K bytu náleží také sklep o velikosti 1,7 m2. Byt je ve velmi dobrém technickém stavu. Elektroinstalace je v mědi, rozvody vody v plastu, okna jsou dřevěná s izolačním dvojsklem. V roce 2020 byla položena vinylová podlaha a zrekonstruována kuchyň, v roce 2021 byly vyměněny interiérové dveře a v roce 2023 byl instalován nový plynový kotel značky Viessmann, který zajišťuje vytápění i ohřev vody. Celkové měsíční náklady pro dvě osoby činí cca 4.800 Kč. Městská část Tuřany patří mezi oblíbené a plně funkční lokality Brna. Nabízí výbornou dopravní dostupnost - rychlé napojení na dálnice D1 a D2, snadný přístup na městský okruh a pohodlné spojení MHD do centra města, na Campus Square i do FN Brno. Zastávka MHD se nachází jen pár kroků od domu. Parkování je bezproblémové přímo před domem i v jeho okolí, bez modrých zón. Velkou výhodou je také blízkost nákupních a zábavních center Olympia, Avion Shopping Park a OC Kastaňová, která jsou dostupná během několika minut jízdy autem. Tuřany disponují kompletní občanskou vybaveností - mateřskou i základní školou, lékaři, veterinou, poštou, bankomatem, obchody i dalšími službami pro každodenní život. Přímo za domem se nachází dětské hřiště a v okolí je dostatek zeleně a možností k rekreaci. Nechybí cyklostezky vedoucí směrem na Újezd u Brna nebo do přírody podél řeky Dunávky. Tuřany jsou známé svou komunitní atmosférou, pravidelnými trhy, místními akcemi a dobrou dostupností sportovišť. V případě zájmu o prohlídku nás neváhejte kontaktovat. Rádi vám byt osobně představíme.
Prodej bytu 2+kk na ulici Slovákova
Chcete bydlet v centru Brna a mít všechno doslova pár kroků od domu? Hledáte byt 2+kk, který dává smysl pro vlastní bydlení a i jako investice? Na…
OV 2+kk, ul. Masarykova, Brno
Nabízíme byt OV 2+kk v Brně na ul. Masarykova. Byt se nachází v samém srdci Brna, v 6NP cihlového domu s výtahem. CP bytu je 40m2. Měsíční náklady -…