Makléř: Heverová Miroslava
Telefon: 538 728 ...
E-mail: bonusbr ...
Zobrazit celý kontaktTelefon: 538 728 645
E-mail: bonusbrno@century21.cz
Nemovitost nabízí
CENTURY 21 Bonus Brno
Křenová 479/71, Brno
www.century21.cz/kancelar-bonus-brno
Zobrazit kontakt na RK737 199 849
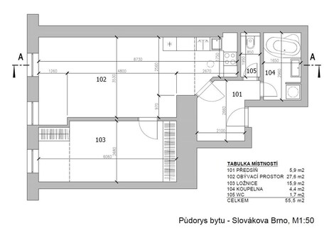
Chcete bydlet v centru Brna a mít všechno doslova pár kroků od domu? Hledáte byt 2+kk, který dává smysl pro vlastní bydlení a i jako investice? Na ulici Slovákova v Brně - Veveří nabízím k prodeji byt 2+kk v cihlovém domě. Byt se nachází ve 4. nadzemním podlaží bez výtahu. Dispozice je praktická a příjemně řešená: samostatný pokoj s vestavěnou skříní a obývací prostor s kuchyňským koutem, díky čemuž byt působí vzdušně a dobře se v něm funguje jak jednotlivci, tak páru. Kuchyňská linka je vybavená digestoří, varnou deskou, troubou a myčkou, takže se můžete rovnou nastěhovat nebo byt bez starostí připravit na pronájem. Velkým benefitem je také vnitroblok s možností využití - oceníte ho jako klidnější zónu mimo ulice centra, ať už na krátké posezení, nebo jen pro chvíle, kdy chcete na vzduch bez toho, abyste odcházeli někam daleko. Byt je v osobním vlastnictví, takže je možné financování hypotékou. Měsíční náklady jsou přehledné: fond oprav cca 2 560 Kč (včetně vody), dále elektřina cca 2 000 Kč a plyn cca 2 000 Kč (orientačně dle spotřeby). Pokud hledáte adresu, kde máte všechno po ruce a zároveň chcete mít možnost schovat se do klidnějšího prostoru domu, tenhle byt stojí za osobní prohlídku. Zavolejte mi, ráda Vám byt ukážu a doplním veškeré informace k domu, nákladům i možnostem využití.
Prodej bytu 2+kk s terasou, 65,02 m2, Brno - Faměrovo náměstí
Nabízíme k prodeji nový byt s označením 3.03 o dispozici 2+kk v právě vznikajícím projektu Bytový dům Faměrovo náměstí v Brně. Byt o celkové výměře…
Prodej bytu 2+kk o celkové výměře 62 m2
První etapa nového brněnského rezidenčního projektu Vista Lískovec je právě v prodeji! Nabízíme byt 2+kk o celkové výměře 62 m2, umístěný v 7.…