Makléř: MERIDIEM Allrisk
Telefon: 773 005 ...
E-mail: info@al ...
Zobrazit celý kontaktTelefon: 773 005 005
E-mail: info@allriskmeridiem.cz
Nemovitost nabízí
Allrisk reality & finance s.r.o.
Komárovská 20a, 61700 Brno
Zobrazit kontakt na RK545 110 345
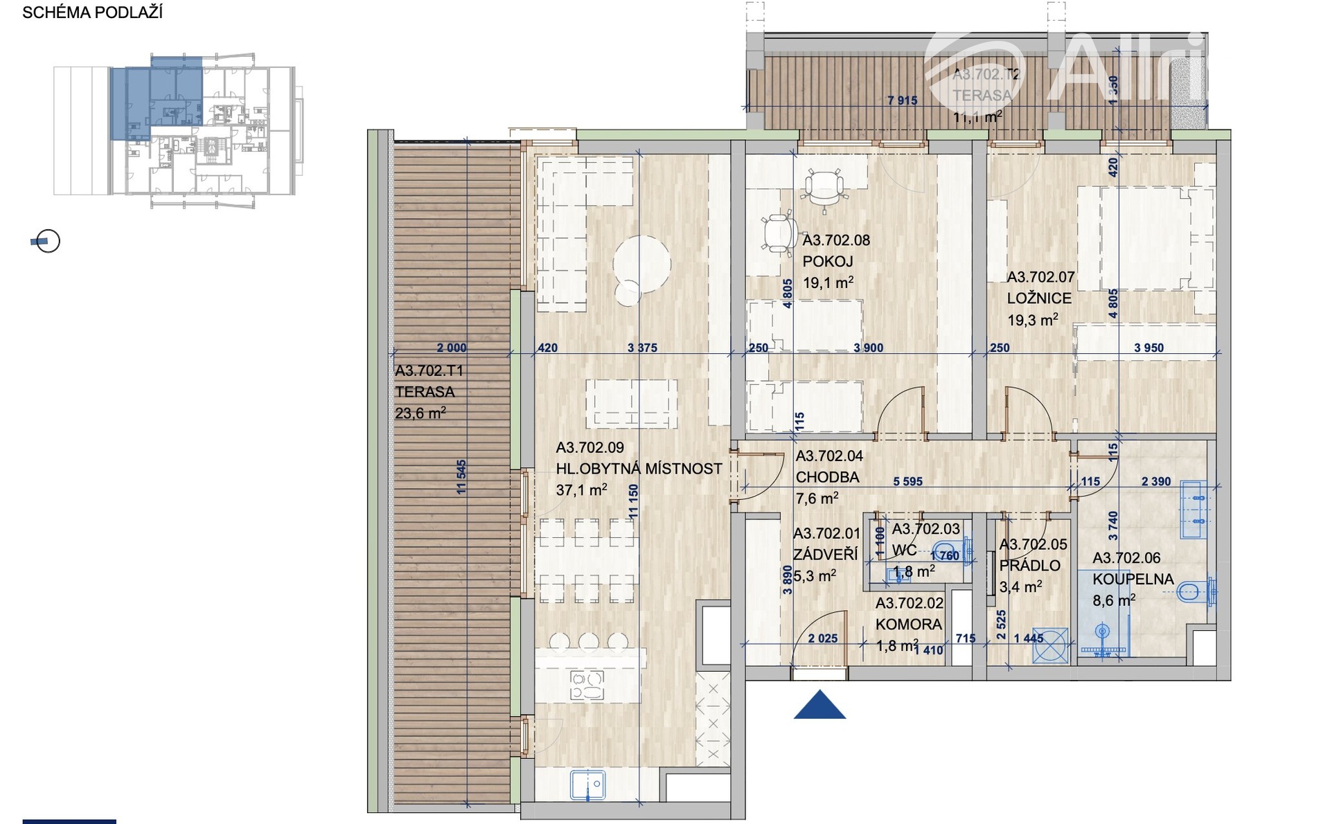
Bydlete v brněnském diamantu. Polyfunkční objekt Allrisk MERIDIEM nabízí moderní byty rozmanitých dispozic a metráží v lokalitě nově vznikající jižní čtvrti Trnitá vzdálené jen 5 minut od centra Brna. V Allrisk MERIDIEM se potkává městský život s prostorem pro relax, sport a každodenní pohodlí. Žijte na adrese, která spojuje centrum města i budoucnost výjimečné lokality. Služby v domě: * posilovna * kavárna Kafec * vinotéka * jógové studio * kosmetické služby * pobočka Allrisk reality & finance V rámci projektu nabízíme byt 3+KK o celkové ploše 109,5 m2, umístěný v 7. nadzemním podlaží. Byt tvoří zádveří s úložným zázemím, komora, samostatné WC, místnost pro pračku a sušičku a koupelna. Dominantou bytu je hlavní obytná místnost s kuchyňským koutem, která je přirozeně prosvětlená díky velkým proskleným plochám. Velkým benefitem bytu jsou dvě terasy, přístupné z obytné místnosti i pokoje a ložnice . Možnost dokoupení 2 garážových stání a 2 sklepních kójí za výhodnou cenu. Zaujala vás nabídka? Vyplňte kontaktní formulář nebo navštivte webové stránky projektu. Rádi vám celý projekt představíme v prezentační místnosti přímo u stavby. Financování k rezervaci stačí pouze 3 % z kupní ceny, zbývajících 97 % se hradí až po podpisu kupní smlouvy. S financováním i případným pronájmem Vám ráda pomůže skupina Allrisk, která nabízí širokou paletu produktů a služeb. Pokud jste si nevybrali z uveřejněné nabídky, zadejte nám prosím Vaši poptávku a my se pokusíme najít odpovídající nemovitost.
Prodej, Byt 3+kk, Brno
Předprodej bytových jednotek projektu BOTANICA zahájen! Nabízíme Vám jedinečný projekt, který dá vašemu životu nový rozměr a prostor pro životní…
Mezonetový byt 3+kk s výhledem na Brno, novostavba
Přestavujeme Vám pokračování úspěšného projektu LOFT BLOK Křenová. Ikonická stavba, která přináší do centra města moderní design a výhledy, které…