Makléř: Miloslava Kačerová
Telefon: 222 703 ...
E-mail: podpora ...
Zobrazit celý kontaktTelefon: 222 703 030
E-mail: podpora@idealninajemce.cz
Nemovitost nabízí
Ideální nájemce
Lazaretní 925/9, 615 00 Brno
Zobrazit kontakt na RK222 703 030
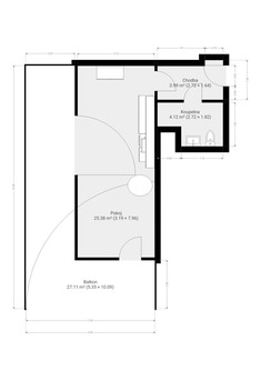
K dlouhodobému podnájmu nabízíme byt o dispozici 1+kk v oblíbené lokalitě blízko centra Brna na ulici Bratislavská. Byt o celkové výměře 33 m2 se nachází v 8. patře domu s výtahem. K bytu patří prostorná terasa o velikosti 27 m2 s krásným výhledem, ideální pro odpočinek či posezení. Byt se nabízí vybavený dle fotografií. Kuchyně je vybavena moderními spotřebiči, včetně myčky, trouby a varné desky. Koupelna disponuje sprchovým koutem, umyvadlem a toaletou. Velkou výhodou je klimatizace, podlahové vytápění a venkovní žaluzie. K bytu je kryté parkovací stání za poplatek 2 500 Kč měsíčně. V okolí najdete veškerou občanskou vybavenost - restaurace, obchody a pohodlný přístup k veřejné dopravě. Na náměstí Svobody se dostanete za přibližně 10 minut, a hned vedle se nachází bazén Ponávka pro sportovní vyžití. Byt je volný k nastěhování od 1.4.2026
Pronájem bytu 1+kk, Slovákova, Veveří, 15.000 Kč/měs, 24 m2
Hledáte menší městské bydlení v srdci Brna? Nabízíme k pronájmu útulný a světlý byt 1+kk o ploše 24 m2 na adrese Slovákova 358/9, Brno - Veveří. Byt…
Pronájem prostorného bytu 1+KK, ulice Soudní, Brno
Nabízíme k pronájmu prostorný byt o dispozici 1+KK a celkové ploše cca 70 m, nacházející se v 1. nadzemním podlaží cihlového domu na ulici Soudní v…