Aktuálně můžete v lokalitě Brno vybírat z nabídky 454 bytů.
Přehled nemovitostí: prodej byty > 4+kk Zpět na přehled nabídek

Prodej bytu OV 4+kk Brno, Žebětín, Hvozdecká, CP 124.6 m2, 1. patro, terasa + sklep

neuvedeno

neuvedeno

osobní

C - Úsporná

00250

06.03.2026

Cena: 11750000 CZK / objekt
Poznámka k ceně: včetně provize, včetně právního servisu 1

Poslat dotaz k nabídce
Zásady používání osobních údajů

Prodejce

Makléř: Bc. Radim Ouředník

Telefon: 777 197 ...

E-mail: ouredni ...

Zobrazit celý kontakt

Nemovitost nabízí

veritably s.r.o.

Koperníkova 2409/3, Brno

www.veritably.cz

Zobrazit kontakt na RK

Zobrazit všechny nabídky RK

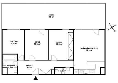
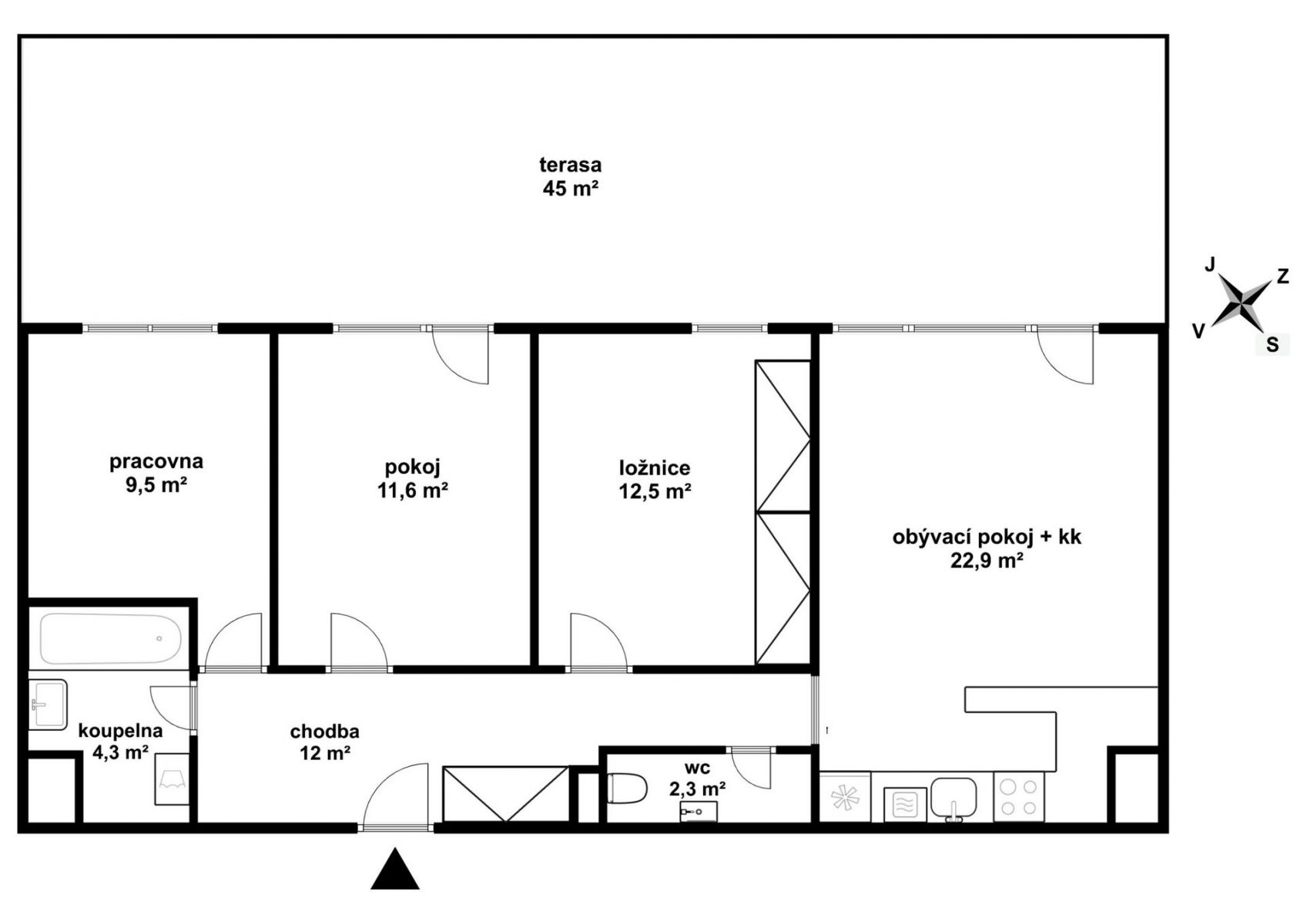
Nabízíme Vám ke koupi výjimečnou jednotku o velikosti 4+kk světlý slunný byt v osobním vlastnictví o výměře 75 m2 orientovaný na jihozápad s terasou 45 m2 a sklepem 4.5 m2 (komorou) umístěný na stejném patře jako je byt s možností přikoupení až 3 parkovacích míst (jedno přímo v domě - na videu bytový dům vlevo a dvě ve vedlejším domě - na videu bytový dům vpravo) nacházející se v přízemí moderního cihlového domu na adrese Brno, Žebětín, ulice Hvozdecká (Kamechy) - kolaudováno v r. 2012, bezbariérový vstup do domu na čipy, kamerový systém, čistý a udržovaný dům s pravidelným řádným týdenním úklidem, druhé nadzemní podlaží z pohledu od terasy - vyšší pocit soukromí a bezpečí, výhled do vnitrobloku, trávníky se zavlažováním, okrasné keře, dálkové ovládání garážových sekčních vrat. Dispozice (přibližné výměry): vstupní chodba 12.0, obývací pokoj 22.9 s jídelnou a kuchyňským koutem s výstupem na terasu 45.0 s markýzou, ložnice 12.5, pokoj 11.6 také s výstupem na terasu, pracovna 9.5, toaleta 2.3 se skříní a umyvadlem, koupelna 4.3 s umyvadlem, vanou se zástěnou (sprchový kout) a místem na pračku, sklep (komora) 4.5 na chodbě před bytem Velmi vkusně řešený pro standardní rodinu plně vyhovující byt umístěný v pěkné lokalitě na dosah přírody a Brněnské přehrady. Plné zázemí - MHD, obchody, lékař, školka, škola, dětská hřiště, multifunkční sportoviště, cyklostezky. Uvolnění dohodou. Neváhejte a o termín Vaší prohlídky kontaktujte makléře ještě dnes. <a href="https://www.eurobydleni.cz/pozemky/stavebni-pozemek-bydleni/klatovy/obec-susice/prodej/"><strong>Prodej stavebního pozemku Sušice</strong></a>




Prodej bytu 4+kk Brno-město, Bystrc na Eurobydleni.cz


Nahoru