Aktuálně můžete v lokalitě Brno vybírat z nabídky 533 bytů.
Přehled nemovitostí: prodej byty > 3+kk Zpět na přehled nabídek

Prodej bytu 3+KK o výměře 88,2m2, Šlapanice

96 m2

88 m2

osobní

B - Velmi úsporná

00003

16.05.2026

Cena: 10346700 CZK / objekt
Poznámka k ceně: včetně DPH, včetně poplatků, včetně provize, včetně právního servisu 1

Poslat dotaz k nabídce
Zásady používání osobních údajů

Prodejce

Makléř: Krejčí Jana

Telefon: 733 636 ...

E-mail: reality ...

Zobrazit celý kontakt

Nemovitost nabízí

LUX Real s.r.o.

Řípská 1181/18, Brno

www.janakrejci.com

Zobrazit kontakt na RK

Zobrazit všechny nabídky RK

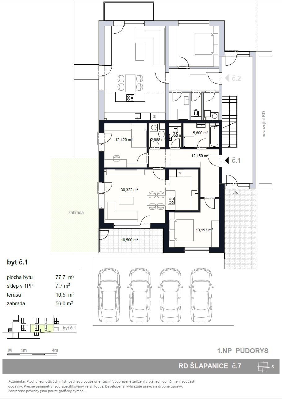
V rámci projektu Nové Šlapanice, který vyrůstá na začátku Šlapanic si Vám dovolujeme představit výjimečné a na danou lokalitu ojedinělé bydlení. Celý projekt je v nadstandartním provedení. Představujeme Vám 3.etapu, která je zaměřena na výstavbu viladomů. V každém viladomě jsou 3 bytové jednotky a ateliér. Je to ideální místo pro ty, kteří hledají kvalitní, moderní, prostorné a dispozičně chytře řešené bydlení. Nabízíme k prodeji byt 3+KK s terasou 10,5m2, zahradou 56m2, sklepem 7,7m2 a 1 parkovacím stáním, vše je součástí kupní ceny. Možnost dokoupení dalšího parkovacího stání za 300.000,-Kč V celém bytě jsou venkovní žaluzie. Viladum č.7 na ulici Stanislava Hanzla Byt č.1 je umístěn v 1.NP Dispozice: chodba 12,42m2, obývací pokoj s kuchyňským koutem 30,3m2 s přímým vstupem na terasu 10,5m2 a zahradu 56m2, ložnice 13,19m2, dětský pokoj 12,42m2, koupelna s vanou a sprchovým koutem 5,6m2, WC zvlášť 1,65m2. a technickou místností 2,38m2. Standarty bytu, které jsou součástí kupní ceny: - podlahy vinyl, keramická dlažba - sanitární technika, sprchový kout, včetně sprchového setu, umyvadlo včetně baterie, vana, závěsné WC, zrcadlo, obklady - mramor - interiérové dveře + obložkové zárubně, vstupní dveře - podlahové vytápění, topné těleso - venkovní klimatizace - venkovní osvětlení - rekuperace Samotná lokalita nabízí širokou škálu pracovních možností a veškerou potřebnou občanskou vybavenost a výbornou dojezdnost díky dálnici D1 a D2. Také zde v docházkové vzdálenosti nalezneme školu, školku, řadu obchodů, restaurací a služeb, trolejbusovou zastávku, ale především vlakové nádraží, z kterého jste na Hlavním vlakovém nádraží v Brně za 15 min. Dokončení bytů je plánované na 3Q roku 2026. Výhodou je model financování nemovitosti. Pokud by Vás nabídka tohoto či jakéhokoliv jiného bytu v tomto projektu zaujala, kontaktujte prosím makléře, u kterého se dozvíte více. Děláme moderní bydlení dostupnější.



Nahoru