Aktuálně můžete v lokalitě Brno vybírat z nabídky 433 bytů.
Přehled nemovitostí: prodej byty > 4+kk Zpět na přehled nabídek

Prodej bytu 4+kk 151,4m2, Šlapanice

159 m2

151 m2

osobní

B - Velmi úsporná

00005

15.01.2026

Cena: 16685800 CZK / objekt
Poznámka k ceně: včetně DPH, včetně poplatků, včetně provize, včetně právního servisu 1

Poslat dotaz k nabídce
Zásady používání osobních údajů

Prodejce

Makléř: Krejčí Jana

Telefon: 733 636 ...

E-mail: reality ...

Zobrazit celý kontakt

Nemovitost nabízí

LUX Real s.r.o.

Řípská 1181/18, Brno

www.janakrejci.com

Zobrazit kontakt na RK

Zobrazit všechny nabídky RK

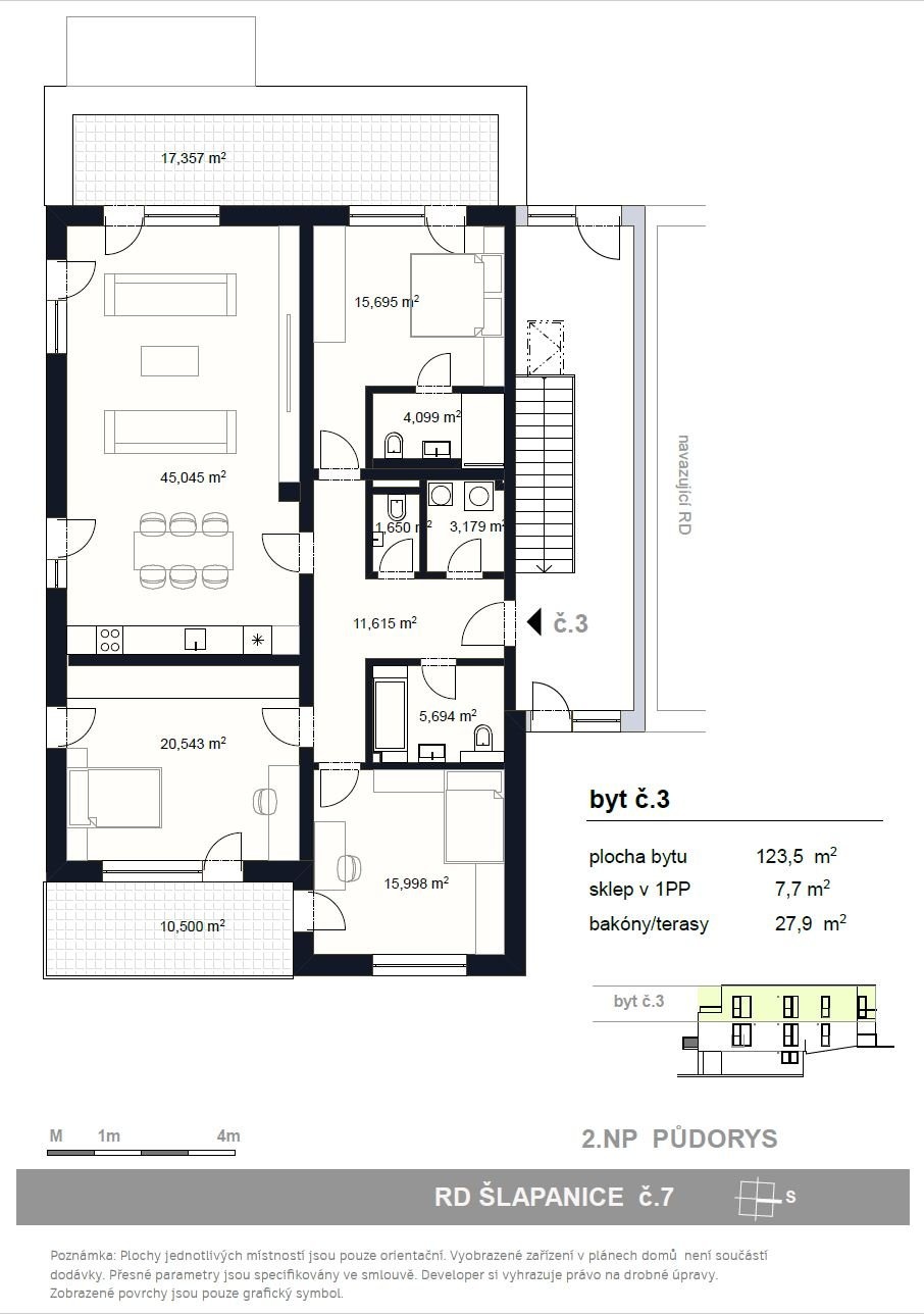
V rámci projektu Nové Šlapanice, který vyrůstá na okraji města Šlapanic si Vám dovolujeme představit výjimečné a na danou lokalitu ojedinělé bydlení. Představujeme Vám 3.etapu, která je zaměřena na výstavbu 4 viladomů, se 3 bytovými jednotkami a ateliérem. Je to ideální místo pro ty, kteří hledají kvalitní, moderní, prostorné a dispozičně chytře řešené bydlení. V tomto projektu nabízíme k prodeji byt 4+KK s terasou 18m2, balkonem 10,5m2, sklepem 7,7m2 a 1 parkovacím stáním vše je součástí kupní ceny. Možnost dokoupení dalšího parkovacího stání za cenu 300.000,-Kč. První tři kupující v tomto projektu mají BONUS - KUCHYŃSKOU LINKU VČETNĚ VŠECH SPOTŘEBIČŮ Zn. ELECTROLUX V HODNOTĚ 650.000,-Kč ZDARMA. V celém bytě jsou venkovní žaluzie Viladům č.7 na ulic Stanislava Hanzelky Byt č.3 o celkové ploše je umístěn v 2.NP Dispozice: chodba 11,61m2, obývací pokoj s kuchyňským koutem 45,04m2, ložnice 15,69m2 s koupelnou s vanou včetně WC 4,09m2, dětský pokoj 20,54m2 se vstupem na balkon 10,5m2, druhý dětský pokoj 15,99 m2, koupelna s vanou včetně WC 5,69m2, technická místnost 3,17m2 a WC zvlášť 1,65m2. Z obývacího pokoje a ložnice je vstup na terasu o výměře 18m2. Standarty bytu, které jsou součástí kupní ceny: - podlahy vinyl, keramická dlažba - sanitární technika, 2x umyvadlo včetně baterie, 2x vana, 3 x závěsné WC, zrcadla, obklady - mramor - interiérové dveře + obložkové zárubně, vstupní dveře - podlahové vytápění, topné těleso - venkovní osvětlení - klimatizace - rekuperace Samotná lokalita nabízí širokou škálu pracovních možností a veškerou potřebnou občanskou vybavenost a výbornou dojezdnost díky dálnici D1 a D2. Také zde v docházkové vzdálenosti nalezneme školu, školku, řadu obchodů, restaurací a služeb, trolejbusovou zastávku, ale především vlakové nádraží, z kterého jste na Hlavním vlakovém nádraží v Brně va 15 min. Dokončení bytů je plánované na 3Q roku 2026. Výhodou je model financování nemovitosti. Pokud by Vás nabídka tohoto či jakéhokoliv jiného bytu v tomto projektu zaujala, kontaktujte prosím makléře, u kterého se dozvíte více. Děláme moderní bydlení dostupnější.



Nahoru