Makléř: Ing. Urban Lenka
Telefon: 810 300 ...
E-mail: info@mm ...
Zobrazit celý kontaktTelefon: 810 300 300
E-mail: info@mmreality.cz
Nemovitost nabízí
M&M reality holding a.s.
Krakovská 1675/2, 110 00 Praha 1
Zobrazit kontakt na RK800 100 446
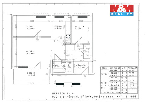
Nabízíme k prodeji byt o dispozici 3+1 se zasklenou lodžií a sklepem, který je umístěný v 5. NP panelového domu s výtahem. Celková plocha bytu činí 66 m2, z toho lodžie 4,7 m2 a 2 m2 sklepní kóje. Byt je v původním stavu, určený ke kompletní rekonstrukci, čímž se novému majiteli otevírá prostor pro úpravu interiéru podle svého vkusu. Dispoziční řešení a orientace: ložnice, kuchyně a pokoj jsou orientovány na sever, obývací pokoj se zasklenou lodžií a klimatizační jednotkou je orientován na jih, v chodbě se nachází spíž, kterou lze přetvořit na praktickou šatnu. Dům je po revitalizaci, s rekonstruovaným výtahem. Okolí nabízí nejen parkovací místa a plnou občanskou vybavenost, ale také dětská a workoutová hřiště. Zastávka MHD 3 min. chůze, 20 min. do centra. Tento byt je vhodný jak pro vlastní bydlení, tak jako investiční příležitost. Zavolejte si pro více informací nebo si rovnou domluvte prohlídku.
Prodej bytu 3+1 s balkonem, sídliště Vinohrady Brno
Nabízím Vám ke koupi prostorný a světlý byt 3+1 v osobním vlastnictví na ulici Velkopavlovická o celkové užitné ploše 64 m2 umístěný ve 12. patře…
Prodej bytu 3+1, 2. NP/7, 74m2 plus sklep, komora a lodžie
Nabízíme k prodeji byt 3+1 dle prohlášení vlastníka o výměře 74,34 m2 plus sklepní kóje (1,49 m2), komora na chodbě (1.34 m2) a lodžie (3,12 m2). Byt…