Aktuálně můžete v lokalitě Brno vybírat z nabídky 402 bytů.
Přehled nemovitostí: pronájem byty > 3+1 Zpět na přehled nabídek

Váš nový domov vonící novotou 3+1 s lodžií a úžasným výhledem, Brno

72 m2

72 m2

osobní

G - Mimořádně nehospodárná

66472KJo

14.12.2025

Cena: 21999 CZK / objekt / měsíc
Poznámka k ceně: + inkaso 6.000, Kč, elektřina a plyn budou přepsány na nájemníka 1

Poslat dotaz k nabídce
Zásady používání osobních údajů

Prodejce

Makléř: Joch Karel

Telefon: 538 728 ...

E-mail: bonusbr ...

Zobrazit celý kontakt

Nemovitost nabízí

CENTURY 21 Bonus Brno

Křenová 479/71, Brno

www.century21.cz/kancelar-bonus-brno

Zobrazit kontakt na RK

Zobrazit všechny nabídky RK

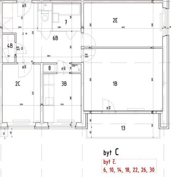
Hledáte bydlení, kde můžete začít bydlet ještě letos? Představujeme vám krásný, čerstvě vymalovaný byt 3+1 (72 m2) na ulici Moldavská, který vás okouzlí svou světlostí a praktičností. Proč si tento byt zamilujete: Vše jako nové: Čeká na vás nová kuchyňská linka, měkké nové koberce a stylové tapety. Byt je čistě vymalovaný a připravený. Soukromí pro každého: Tři neprůchozí pokoje (18, 12 a 8 m2) zajistí klid pro rodiče, děti i práci z domova. Relax s výhledem: Byt se nachází v 6. patře revitalizovaného domu s novým výtahem. Z prostorné lodžie si užijete kávu s výhledem do okolí, nikoliv do zdi sousedního domu. Praktičnost: Komora přímo v bytě, samostatné WC a velká vana pro váš relax. Dům je zateplený (nízké náklady, v zimě teplo, v létě příjemně) a má nová plastová okna. Lokalita je perfektní - vše, co potřebujete, máte na dosah ruky. Volný ihned - Vánoce už můžete slavit v novém! Přijďte se podívat, tento byt naživo vypadá ještě lépe. Těším se na prohlídku. Váš realitní poradce Karel Joch



Nahoru