Aktuálně můžete v lokalitě Brno vybírat z nabídky 402 bytů.
Přehled nemovitostí: pronájem byty > 3+kk Zpět na přehled nabídek

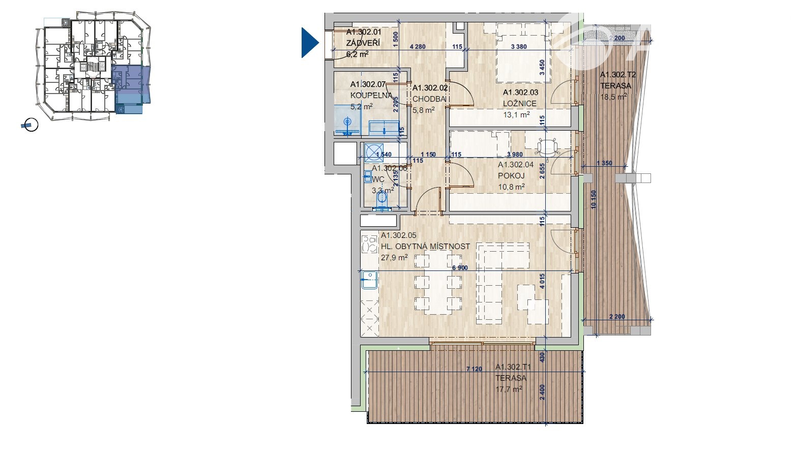
PRONÁJEM BYTU 3KK S 2 TERASAMI 130m2 v novostavbě, Brno

130 m2

75 m2

osobní

B - Velmi úsporná

BK622329

Cena: 35000 CZK / objekt / měsíc
Poznámka k ceně: + záloha na služby a energie, + kauce ve výší dvou nájmů a provize RK vč. právního servisu ve výši jednoho nájmu, včetně DPH, včetně poplatků, + provize RK, včetně právního servisu 1

Poslat dotaz k nabídce
Zásady používání osobních údajů

Prodejce

Makléř: Petrová Zuzana

Telefon: 777 818 ...

E-mail: petrova ...

Zobrazit celý kontakt

Nemovitost nabízí

Allrisk reality & finance s.r.o.

Komárovská 20a, 61700 Brno

www.allriskreality.cz

Zobrazit kontakt na RK

Zobrazit všechny nabídky RK

Nabízím k pronájmu byt 3kk v atraktivní lokalitě o celkové ploše 130 m2 - terasami o velikosti 17,7 m2 a 18,5 m2, umístěný v 3. nadzemním podlaží novostavby Allrisk MERIDIEM na ulici Komárovská. DISPOZICE: - hlavní místnost s kuchyňským koutem (27,9 m2) - pokoj (13,1 m2) - pokoj (10,8 m2) - chodba (5,8 m2) - zádveří (6,2 m2) - koupelna se sprchovým koutem (5,2 m2) - samostatné WC (3,3 m2) KLÍČOVÉ VÝHODY: - novostavba s vysokým standardem provedení - francouzská okna zajišťující dostatek denního světla - samostatná koupelna a WC - 2 terasy VYBAVENÍ: - klimatizace - rekuperace - venkovní elektricky ovládané žaluzie - velkoformátové obklady a dlažba v koupelně a na toaletě - kuchyňská linka s vestavnými spotřebiči - skříňka pod TV - vestavná skříň v ložnici a na chodbě - botník na chodbě - umyvadlové skříňky na WC a v koupelně LOKALITA: - výborná dostupnost MHD, do centra Brna za pár minut - rekreační možnosti: cyklostezka, biotop, sportovní centrum, parky - kompletní občanská vybavenost v docházkové vzdálenosti PARKOVÁNÍ: možnost pronájmu dvou parkovacích stání (nabíjecí stanice wallbox), která se nachází přímo v domě v 1. podzemním podlaží - pohodlný a bezpečný přístup výtahem až k jednotce. SKLEP: možnost pronájmu sklepní kóje, která se nachází přímo u garážového stání ZAUJALA VÁS TATO NABÍDKA? Neváhejte mě kontaktovat prostřednictvím formuláře u této nabídky - ráda Vám poskytnu veškeré informace a zodpovím Vaše dotazy, doplním všechny užitečné informace a zajistím osobní prohlídku. Společně projdeme vše důležité, abyste si mohli udělat jasnou představu, zda je tato nemovitost tou pravou volbou právě pro Vás. Pokud jste si nevybrali z uveřejněné nabídky, zadejte nám prosím Vaši poptávku a my se pokusíme najít odpovídající nemovitost.



Nahoru